From the very beginning
Our journey to building this home began years ago, when our young family in Queenstown started trying to secure a section in the Hanley’s Farm ballot. After four years of unsuccessful attempts, our luck finally changed.
In October 2022, we made one last effort to purchase a section in the rapidly selling-out Hanley’s Farm. At 8:00 a.m. on the morning of the release, we submitted our selections. By 8:10 a.m., an email came through saying we had secured a section! The unconditional agreement was signed the next day, and the 10% deposit was paid soon after. It was a ruthless process. Gone are the days when you could simply drive around and choose the section you wanted.
With the paperwork behind us, the waiting game began for the title, which was expected to take 12 to 18 months.
The Design - concept plans
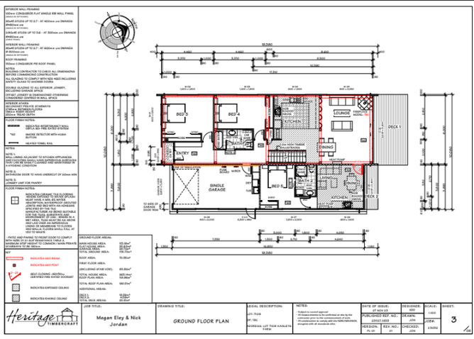
With the section secured we began designing our home. Our number one goal: to be different and try something new. After 20 years as a builder, I’ve spent the last decade questioning some of the methods we use in New Zealand construction. My experience building homes in Canada from 2005 to 2010 exposed me to a style that sparked a deep passion—timber frame homes.
These homes feature large timber posts, beams, and rafters, all locked together with traditional woodworking techniques like mortise and tenon joints. It’s a building style that radiates warmth and soul, making you feel as if the home is alive and sharing the space with you. That’s the feeling we wanted for our own home, so timber framing was an obvious choice.
We started working on concept plans with the team at Heritage Timbercraft in Hawkes Bay. I was constantly exploring ways to simplify and make the building process more efficient. Initially, we considered an insulated metal panel system, but after some technical challenges, we decided to explore other options.
Back to the drawing board
With time ticking away, I reached out to my designer, Craig Hayward at Xpress Design and Drafting, to discuss my growing concerns with the current system. He listened, and without hesitation, agreed that it wasn’t the right path. Then he mentioned something intriguing—a new SIP (Structural Insulated Panel) product called Select SIP. It had just hit the market.
Curious and eager to explore, I wasted no time and called Paul Baines at Select SIP the very next day. Our conversation was electrifying. His passion for the product was undeniable, and by the time we wrapped up, I knew I had found the missing piece to our project. This wasn’t just another building material; this was the key to making our vision of warmer, healthier homes a reality—without the complexity.
One question lingered: cost. A week later, the numbers came in, and I was genuinely surprised. Not only was Select SIP more affordable than other panels I had priced before, but it also came with game-changing benefits. There was no need for exterior wall wraps, built-in service chases made wiring a breeze, and the mold-resistant panels streamlined the finishing process. This wasn’t just a solution—it was a breakthrough. A system that could transform the way homes are built in New Zealand, creating warmer, drier, healthier spaces with greater efficiency.
Cutting Labour, Building Better
My mission became clear: cut labor costs and build warmer, drier, healthier homes in a simpler way, with a smaller team.
The unexpected title news
While we anticipated the title to arrive around July or August, based on past timelines, we were in for a surprise. Early May brought an unexpected email from our solicitor: the title would be issued within 15-22 working days! Shocked but excited, we realised the process was moving faster than expected.
Race to secure finance
With the title arriving earlier than expected, we had to scramble to secure finance—far sooner than planned. Originally, we aimed for mid-June, but now we needed everything in place immediately. Thankfully, we were introduced to the amazing team at Your Mortgage Team (YMT). They quickly understood the urgency, guided us through the process with ease, and even helped secure an extra week for the bank to finalise everything.
Before we knew it, we became proud owners of our section at Hanley’s Farm. Despite the rush, the entire process felt seamless, thanks to the incredible support from those who helped along the way.
Plans Submitted to Council
We’re now on the final stages of our planning and await with anticipation the council consent to be finalised. It’s been a long process, our innovative building approach has requires many alterations to the original plans. Introducing new ideas into regulatory frameworks involves a lot of back and forth, just one more moment and we’ll be there.
Eighteen months of careful preparation are nearing the end and we'll soon begin the actual construction.
Stay tuned as we continue to share this journey with you.



